1 van 50
CARLA VILLAS PARK
Welkom in dit stijlvolle en kleinschalige nieuwbouwproject van 7 vrijstaande designvilla’s met privézwembad en modern design, ideaal gelegen in het zonnige San Fulgencio aan de zuidelijke Costa Blanca. Deze moderne woningen zijn volledig op het zuiden georiënteerd, waardoor u het hele jaar door geniet van maximale lichtinval, een warm wooncomfort en een perfecte mediterrane levensstijl.
Elegantie en functionaliteit in één ontwerp
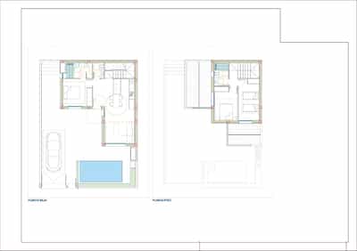
Elke villa is ontworpen met oog voor detail en combineert een slimme indeling met hoogwaardige materialen. De woningen bestaan uit twee verdiepingen en bieden:
3 ruime slaapkamers, waarvan één op de begane grond voor extra comfort
2 volledig uitgeruste badkamers + 1 gastentoilet
Open keuken met moderne inbouwapparatuur
Heldere en ruime woonkamer met directe toegang tot de tuin
Deze doordachte indeling biedt een ideale mix van privacy, comfort en een open, uitnodigende leefomgeving.
Geniet van uw eigen buitenoase
De villa’s beschikken over prachtige privébuitenruimtes die perfect aansluiten op het mediterrane klimaat:
Privézwembad van 3×5 meter – ideaal voor ontspanning en verfrissing
Parkeerplaats op eigen perceel
Twee zonovergoten terrassen op de bovenverdieping, ideaal voor loungen, zonnebaden of sfeervolle avonden
Hier beleeft u het echte buitenleven: ontbijten in de ochtendzon, zwemmen wanneer u maar wilt en ontspannen genieten van warme zomeravonden.
Kwaliteit en duurzaamheid als standaard
De woningen zijn gebouwd volgens de nieuwste constructienormen en bieden hoogwaardige afwerkingen en duurzame oplossingen:
Elektrische rolluiken
Versterkte aluminium kozijnen met dubbele beglazing
Aerothermisch warmwatersysteem voor energiezuinige verwarming
Voorinstallatie voor airconditioning via luchtkanalen
Badkamers met moderne meubels, spiegels en douchewanden
Deze voorzieningen maken uw woning niet alleen stijlvol, maar ook comfortabel, efficiënt en toekomstbestendig.
Perfect gelegen in San Fulgencio
San Fulgencio is een ontspannen en vriendelijke woonomgeving met alle dagelijkse voorzieningen op loop- of fietsafstand. Daarnaast profiteert u van een strategische ligging ten opzichte van de mooiste kustplaatsen en bezienswaardigheden:
Strand van La Marina – 7 km
Guardamar del Segura – 10 km
Golfbaan La Marquesa (Ciudad Quesada) – 6 km
Centrum van Torrevieja – 18 km
Luchthaven Alicante-Elche – 30 km
Hier woont u in rust, maar toch dicht bij alles wat de Costa Blanca zo geliefd maakt.
Ideale keuze voor wonen, vakantie of investering
Dankzij de hoogwaardige afwerking, het moderne ontwerp en de uitstekende ligging vormen deze villa’s een perfecte optie voor:
Permanente bewoning
Een luxe vakantiehuis
Een veilige en aantrekkelijke vastgoedinvestering
Kies voor kwaliteit, design en een woning die volledig aansluit op de mediterrane levensstijl.
Neem vandaag nog contact met ons op voor meer informatie, prijzen en beschikbaarheid, of om een bezichtiging te plannen.
Uw nieuwe thuis in San Fulgencio wacht op u!
Feiten & Kenmerken
€ 355.000
